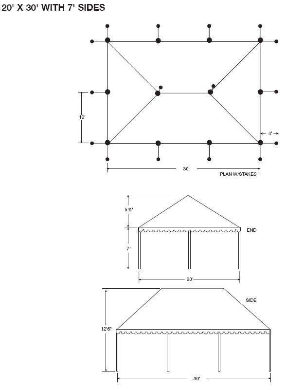
20x30 Frame Tent Instructions

20 X 30 Frame Tent Installation Instructions

20 X 30 Frame Tent Installation Instructions

20 X 30 Master Series Frame Tent Directions Www Celina Tent

20 X 30 Master Series Frame Tent Directions Www Celina Tent

20x30 Pole Tent Setup Instructions

20x30 Pole Tent Setup Instructions

Anchor Century Frame Tents 20x30 With Optional Walls User Manual 9 Pages

Anchor Century Frame Tents 20x30 With Optional Walls User Manual 9 Pages

20x30 Pole Tent Setup Instructions

20x30 Pole Tent Setup Instructions

20x30 Frame Tent Ohenry Frame Tents Are Your Best Frame Tent Choice

20x30 Frame Tent Ohenry Frame Tents Are Your Best Frame Tent Choice

20x30 Frame Tent Ohenry Frame Tents Are Your Best Frame Tent Choice

You can carry it anywhere you want.

20x30 frame tent instructions.

8 8 tables 76 chairs. 30 wide frame tent instructions 30x30 30x40 30x50 30x60 30x70 30x80 30x90. Seating layouts for 20 x 30 tent. Looking for a 20x30 frame tent.

9 6 tables 72 chairs. 20 x 60 tent. Anchor s tension frame tent the century frame combines graceful peaks and curves with frame tent stability. Base plates ropes and stakes included.

4 separate illustration sheet 2. 6 60 tables 48 chairs. Shop our 20 x 30 tents for sale. 8 6 tables 64 chairs.

40 wide frame tent instructions 40x40 40x50 40x60 40x70 40x80 40x90 40x100 40x120. 20 wide frame tent instructions 20x20 20x30 20x40 20x60. Recommended to have 6 8 people to assemble tent to avoid damage. 20x40 pole tent setup instructions.

Charcoal grill operating instructions. 20 60 tent with 60 inch rd tables. Pole tent instructions sectional pole tent instructions tightening pole tents installing tents on concrete slab pole tent diagrams high peak tent diagrams frame tent schematics. Seating layouts for 30 x 30.

S ort the poles by the number listed on them. 40 frame tents. When you and your friends go hiking picnic or hold a pool party or you hold a flea market the tent gives you great help. Quick and easy to install century frame features strong aluminum box beam frames and attractive one piece tops.

Compare to parts list shown o n fig. Our heavy duty 20x30 tents are built to last. 20x30 pole tent setup instructions. Tent and table is your 1 supplier for high quality commercial grade 20x30 canopy tents.

The tent is light and occupies little space when it is folded. Capacity of propane gas cylinders. 20x20 pole tent setup instructions. Welcome to buy this easy pop up tent.

7 8 tables 70 chairs. 20 x 30 tent. Shop and save on a 20x30 canopy tent at tent and table. Baseball toss frame game instructions.

Tent and table is the 1 distributor of high quality heavy duty 20x30 frame tents for sale. 30 frame tents. Seating layouts for 20 x 60 tent. Completely unpack tent from all of the boxes and inspect all pieces.

All of the poles are numbered 1 4. Our commercial grade 20 x 30 frame tent canopies are durable and built to last and come directly from the. Commercial 20x30 frame tents for sale. Welded steel fittings for corners center crown etc.

20 X 30 Master Series Frame Tent Installation Procedure Youtube

20 X 30 Master Series Frame Tent Installation Procedure Youtube

20 X 30 Pole Tent Installation Instructions

20 X 30 Pole Tent Installation Instructions

20 X30 Master Series Frame Tent Installation Procedure Youtube

20 X30 Master Series Frame Tent Installation Procedure Youtube

Https Www Gettent Com Images C07y20x30 20 X 30 Master Series Frame Tent 1 Pc Manual Pdf

Https Www Gettent Com Images C07y20x30 20 X 30 Master Series Frame Tent 1 Pc Manual Pdf

Source : pinterest.com